|
|
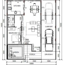
Suprafete utile - Parter
|
|
|
Suprafete utile - Parter
|





Totul este la superlativ! RECOMAND ARHICON! <3
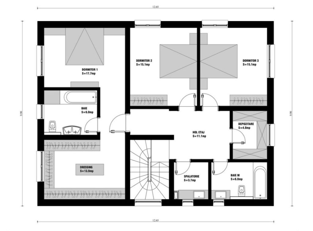
Proiect casă P+E (3 dormitoare) – Helios – 196 mp
Cu Antreprenor General
În regie proprie




4.00100000
99000
Începând de la: 98000 EUR
Începând de la: 97800 EUR
Începând de la: 99000 EUR
Proiect casă cu mansardă (3 dormitoare) – Ariel – 160 mp
dormitoare
bai Proiect spălătorie auto – Vector – 240 mp
boxe auto
baie